Open House Madrid 2023
NOTICIAS
9/28/20236 min read
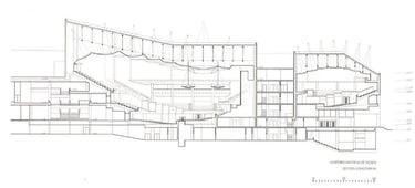
La sala sinfónica es toda una obra de ingeniería. Sus formas sinuosas, sus techos de madera de nogal e incluso sus lámparas convexas están especialmente diseñados para conseguir una reverberación sonora de dos segundos, lo idóneo para poder disfrutar de la música sinfónica. La gran parte de los espectadores se sitúan frente a la orquesta, de tal forma que reciben las notas musicales de forma directa, pero también hay butacas en los laterales y tras la orquesta. Estas localidades, mediante diferentes reflexiones, reciben la música con la misma reverberación que las que se sitúan de frente; se fue comprobando butaca por butaca que así fuera.






La semana pasada se celebró el festival de arquitectura Open House Madrid, una cita a la que acudimos todos los años, pues es una oportunidad estupenda para conocer la ciudad en la que vivimos de otra manera. Se ofrecen visitas a un centenar de edificios y estudios de arquitectura que normalmente están cerrados al público y se organizan itinerarios por la ciudad para conocerla más a fondo. Es complicado conseguir entradas, hay que ser muy rápido en cuanto se abre el plazo de inscripción. Este año, hemos visitado dos edificios muy relevantes de la arquitectura madrileña y nos ha encantado poder conocer los entresijos de estas dos obras.
Lo primero que visitamos fue la rehabilitación del edificio de oficinas Castellana 44 realizada por EAS y Aybar Mateos arquitectos. El edificio original fue proyectado por el arquitecto José María Bosch Aymerich en el año 1976, pero en el año 2015 se decidió rehabilitarlo, pues ya no cumplía con las normativas actuales tanto funcionales como de control climático.
Aymerich, en su proyecto inicial, buscó generar la sensación de torre evitando que se leyese fácilmente en la fachada el número de plantas que tenía, siendo realmente 10. Esta ambigüedad hacía pensar que el edificio era más alto. La rehabilitación buscó mantener esta misma idea de distorsión de escala, añadiendo una envolvente de vidrio que tiene una altura de piezas variable y que, con distintas disposiciones según la orientación de la fachada, consigue controlar el soleamiento.
Castellana 44


El otro precepto del que partió Aymerich al diseñar el edificio fue el de que pareciese que flotara. Para ello, diseñó un sistema estructural con cuatro grandes pilares en la parte central del edificio y una última planta estructural y técnica de la que cuelga la fachada. De esta manera, consiguió que el contacto del edificio con el suelo fuese muy ligero, generando un gran porche en la entrada. El diseño de falso techo con chapas onduladas de acero inoxidable existente en origen en el porche, en la rehabilitación se extendió por toda la planta baja para potenciar esa idea de permeabilidad entre el interior y el exterior. Se reutilizaron algunas piedras nobles existentes en el edifico original y se apostó por el granito, piedra por excelencia de la ciudad de Madrid.






Otro elemento que nos encantó fue el conjunto de murales de hormigón del escultor José Luis Fernández que se realizaron in situ y que se repiten en cada una de las plantas del edificio. En la planta baja se dejó en su posición original para mantener la escala del vestíbulo, pero en las plantas superiores se movieron estos murales para aprovechar algo más el espacio en planta y situar tras ellos el núcleo de aseos. Nos pareció interesante que dejasen vista la parte de detrás del mural en el pasillo de los baños, algo más rugosa, ya que no estaba pensada para ser vista, pero con un gran atractivo bajo nuestro punto de vista.
Los espacios de oficinas que se reparten alrededor de este núcleo de estructura, baños, ascensores y escaleras, se diseñaron de tal manera que la luz y las vistas pudiesen atravesar de una fachada a otra. Se genera un espacio de trabajo muy luminoso en el que se aprecian los árboles de la Castellana y en el que sin duda en un gusto trabajar. Nos ha encantado el resultado, se trata de una rehabilitación muy sensible y respetuosa con el edificio anterior. Se ha mantenido la esencia pero se ha actualizado por completo. Enhorabuena a los autores.




Auditorio Nacional de Música
Este año, el arquitecto homenajeado en el festival Open House Madrid fue José María García de Paredes, arquitecto sevillano que tras una larga carrera, falleció en 1990 en Madrid. En 1957 se casó con María Isabel de Falla, sobrina del compositor Manuel de Falla; quizá de ahí vino su gusto por la música y su paulatina especialización en el diseño de auditorios de música. A lo largo de su carrera, diseñó el Auditorio Manuel de Falla en Granada, el Auditorio Nacional de Música en Madrid, el Palau de la Música Valenciana y el Auditorio y Centro de Congresos Víctor Villegas en Murcia.
La oportunidad de diseñar el Auditorio Nacional de Música de Madrid surgió a raíz de la restauración del Teatro Real. Se decidió que éste se restringiría a la puesta en escena de óperas, por lo que Madrid se vio de repente sin una sala adecuada para acoger conciertos musicales. De ahí que se decidiera en 1982 construir el auditorio que hoy conocemos, capaz de albergar un aforo suficiente para una ciudad que en los años 80 no paraba de crecer.




El edificio por el exterior tiene un carácter intemporal en el que se han utilizado materiales de proximidad: ladrillo y piedra de Colmenar. Está compuesto por una caja totalmente rectangular con una cubierta inclinada y un promontorio de granito en el que puede resonar correctamente la música. A ambos lados, se situan plazas de acceso al edificio que refuerzan el carácter monumental.
Se decidió que debía albergar dos salas; la sala sinfónica y la sala de cámara. Estas se sitúan en los extremos norte y sur del edificio, dejando el tramo central para los espacios de servicio e instalaciones necesarios para el correcto funcionamiento de las salas. En el extremo norte, hay un gran vestíbulo con triple altura y unas escaleras centrales que dan acceso a los distintos niveles de la sala sinfónica, la más grande, con un aforo de 2.450 plazas y un volumen interior de 21.000 m3. En el extremo sur, por el contrario, el vestíbulo es más reducido, ya que la sala de cámara a la que da acceso tiene un aforo menor, de 688 plazas.


Entrada principal al auditorio
Sección longitudinal del edificio
Interior de la sala sinfónica
Vestíbulo principal
Vestíbulo plantas de oficinas
Interior de oficinas
Nuevo núcleo de aseos tras mural
Porche de entrada
Vestíbulo principal
Doble altura en planta baja y sótano
Fachada a Paseo de la Castellana antes y después de la rehabilitación
Únete a nuestra newsletter
para estar siempre al tanto de las últimas novedades
A lo largo de la visita pudimos disfrutar también de otros espacios secundarios como los camerinos, el salón de la Reina, el coro, etc. Fue una experiencia muy curiosa ver el auditorio así de vacío y poder contemplar con detalle su funcionamiento. En cualquier caso, cuando de verdad se disfruta de este maravilloso edificio es cuando está lleno de gente y un orquesta en el centro pone a prueba su acústica. No podemos más que recomendaros que reviséis su amplia programación musical y acudáis a comprobar con vuestros propios ojos y oídos esta maravilla de la arquitectura madrileña de los años 80.
