































































ESTADO PREVIO
ESTADO REFORMADO
Reforma e interiorismo
Chamberí - Madrid
En este proyecto en el barrio madrileño de Chamberí, el cliente deseaba una renovación radical y completa de su inmueble. Nos encargaron el proyecto de arquitectura, la dirección de obra y la decoración.
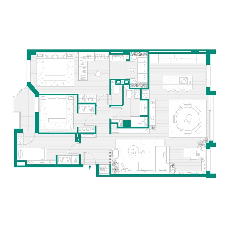
Así, establecimos dos premisas fundamentales para el diseño. La primera; crear un gran espacio de día, abarcando los grandes ventanales que dan al exterior, de tal forma que el cliente pueda desarrollar todas sus actividades en el mismo lugar, siendo el mobiliario el que genera cada zona específica (zona de cine y TV, esquina de home-office con luz natural, espacio de comedor y su cómoda cocina americana). En este sentido, se desplazan los tres dormitorios a la zona interior y más tranquila de la vivienda, siendo el principal en suite, con un moderno vestidor acristalado conectado con el baño, que integra en una cápsula con vegetación la bañera y la ducha. En todas las estancias se ha dedicado especial atención al diseño de la iluminación y al control de la misma mediante domótica.
Nuestra segunda premisa fue utilizar pocos materiales y tonalidades naturales, como son los colores de la arcilla o la piedra. Por ello, diseñamos todo el mobiliario al completo y a medida, combinando la madera y el mármol con latón envejecido y textiles de tonos tierra; consiguiendo así que el hilo conductor de toda la vivienda fuera el sentimiento de serenidad que nos inspira también la naturaleza.